 |
|
搪玻璃反應釜 |
|
|
|
|
|
搪玻璃貯罐 |
|
|
|
|
|
|
|
|
搪玻璃換熱器 |
|
|
|
|
|
不銹鋼設備 |
|
|
|
|
|
|
|
GMP標準搪瓷設備 |
|
|
|
|
|
|
|
|
|
 |
|
 |
|
|
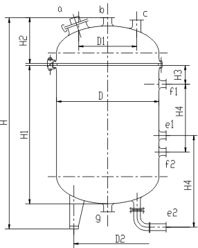
ZK型搪玻璃貯罐(儲罐)- 開式搪玻璃貯罐技術參數值
|

|
|

本樣本所有文字和圖片的所有權都歸淄博太極工業搪瓷有限公司所有,未經許可,不準復制,否則將追究其法律責任。 |
型號
|
公稱容積 L
|
實際容積 L
|
尺寸(mm) |
管口尺寸(mm) |
參考重量kg |
D |
D1 |
D2 |
H1 |
H2 |
H3 |
H4 |
-H |
a |
b |
c |
d |
e |
f |
g |
h |
ZK-50 |
50 |
61.3 |
400 |
240 |
280 |
520 |
250 |
/ |
/ |
1080 |
80 |
65 |
65 |
/ |
/ |
/ |
65 |
65 |
150 |
ZK-100 |
100 |
121 |
500 |
300 |
350 |
660 |
275 |
167 |
700 |
1245 |
100 |
65 |
65 |
/ |
/ |
2-65 |
65 |
65 |
210 |
ZK-200 |
200 |
240 |
600 |
360 |
420 |
900 |
310 |
193 |
900 |
1520 |
125 |
65 |
65 |
/ |
/ |
2-65 |
65 |
65 |
280 |
ZK-300 |
300 |
363 |
700 |
420 |
490 |
1000 |
351 |
178 |
1000 |
1661 |
125 |
80 |
65 |
/ |
/ |
2-65 |
80 |
65 |
380 |
ZK-400 |
400 |
469 |
800 |
480 |
560 |
1000 |
386 |
162 |
1000 |
1696 |
150 |
80 |
65 |
/ |
/ |
2-65 |
80 |
80 |
480 |
ZK-500 |
500 |
590 |
800 |
480 |
560 |
1240 |
386 |
202 |
1200 |
1936 |
150 |
80 |
65 |
/ |
/ |
2-65 |
80 |
80 |
530 |
ZK-800 |
800 |
884 |
1000 |
600 |
700 |
1210 |
436 |
194 |
1200 |
1956 |
150 |
80 |
80 |
80 |
/ |
2-65 |
80 |
80 |
765 |
ZK-1000 |
1000 |
1112 |
1000 |
600 |
700 |
1500 |
436 |
184 |
1500 |
2248 |
150 |
80 |
80 |
80 |
/ |
2-65 |
80 |
80 |
860 |
ZK-1250 |
1250 |
1391 |
1200 |
720 |
840 |
1330 |
486 |
188 |
1300 |
2128 |
200 |
80 |
80 |
80 |
/ |
2-65 |
80 |
80 |
1020 |
ZK-1500 |
1500 |
1674 |
1200 |
720 |
840 |
1580 |
486 |
238 |
1500 |
2378 |
200 |
100 |
80 |
80 |
/ |
2-65 |
100 |
80 |
1120 |
ZK-2000 |
2000 |
2219 |
1300 |
780 |
910 |
1780 |
511 |
224 |
1700 |
2603 |
400×300 |
100 |
80 |
80 |
/ |
2-65 |
100 |
80 |
1470 |
ZK-3000 |
3000 |
3336 |
1450 |
870 |
1015 |
2140 |
559 |
261 |
2000 |
3011 |
400×300 |
125 |
100 |
100 |
/ |
2-65 |
125 |
100 |
1970 |
ZK-4000 |
4000 |
4450 |
1600 |
960 |
1120 |
2340 |
606 |
210 |
1300 |
3258 |
400×300 |
125 |
100 |
100 |
2-65 |
2-65 |
125 |
100 |
2560 |
ZK-5000 |
5000 |
5560 |
1600 |
960 |
1120 |
2890 |
606 |
193 |
1600 |
3808 |
400×300 |
125 |
100 |
100 |
2-65 |
2-65 |
125 |
100 |
2910 |
|
搪玻璃儲罐(貯罐)用以存放酸、醇、氣體等提煉的化學物質。根據結構分可分為:開式搪玻璃儲罐(貯罐)、閉式搪玻璃儲罐(貯罐)、臥式搪玻璃儲罐(貯罐)等。它是石油、化工、糧油、食品、消防、交通、冶金、國防等行業必不可少的、重要的基礎設施,我們的經濟生活中總是離不開大大小小的儲罐。太極標準開式搪玻璃儲罐(貯罐)規格:50L、100L、200L、300L、400L、500L、800L、1000L、1250L、1500L、2000L、3000L、4000L、5000L等,也可根據用戶需要進行非標開式搪玻璃貯罐定做,太極搪玻璃貯罐質量可靠、服務周到、用戶放心。
|
 |
|
|
|
|